At PLOT we can help you bring your outdoors to life
-

Garden Consultation
We offer onsite garden consultations to discuss your project or existing garden. We can assess your existing garden and provide advice from weed identification, through to plant selection and layout ideas.
During this meeting we will determine what level of design input you need to bring your vision to life and provide you with a detailed design proposal after we meet.
The fee for local Canberra consultations is $200 including GST. If you are further afield please reach out and we can provide you with fees for your location.
-

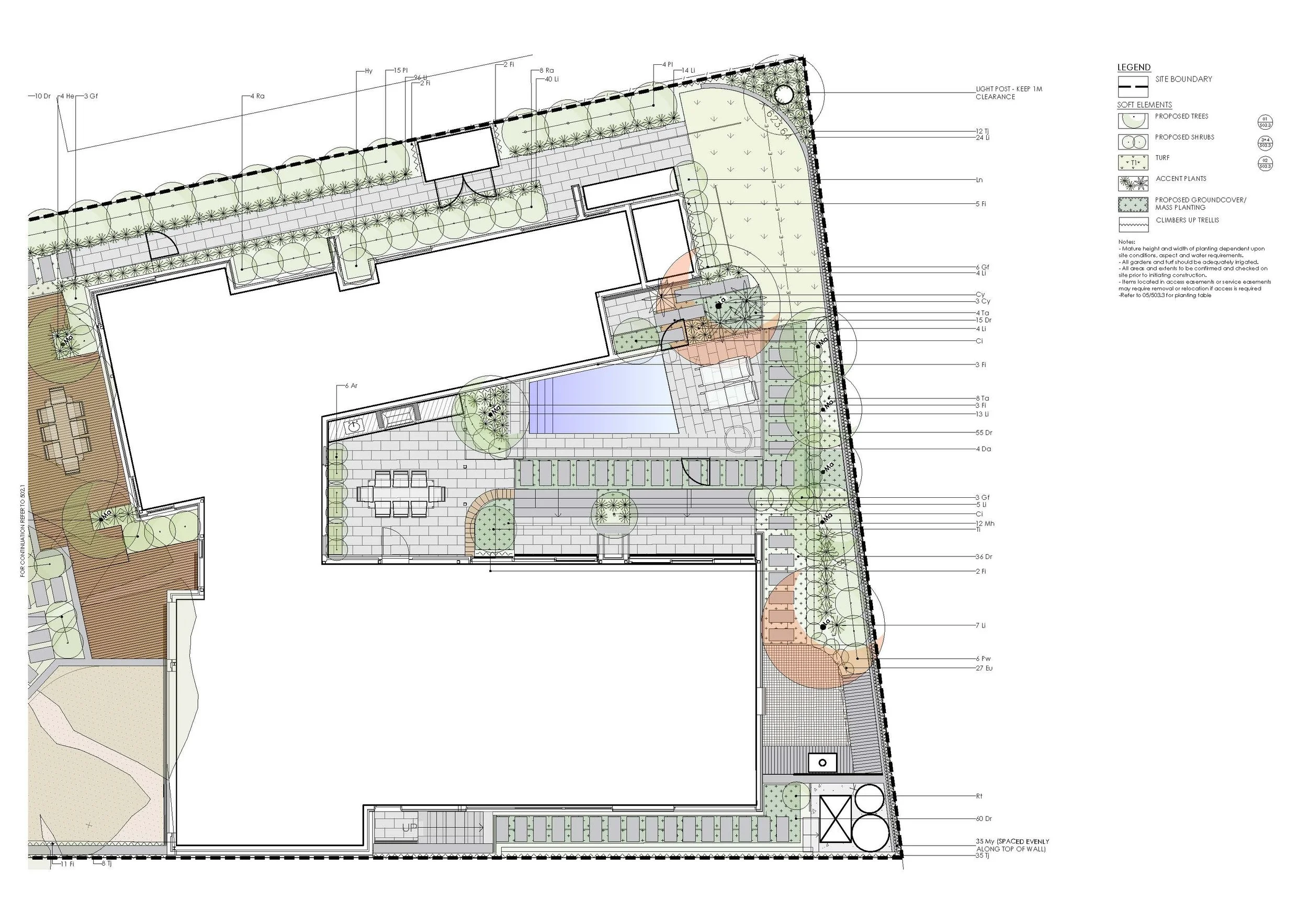
Concept Development
The concept development stage examines the function layout of the landscape design, surface treatments and tree planting locations. External lighting is considered at this stage to ensure there is an integrated approach throughout the garden.
Planting and material palettes are developed to provide a visual context for the landscape design approach.
The landcape concept is reviewed and presented in person with one set of updates included in the fee. -

Detailed Landscape Design
Detailed landscape plans are developed to allow for tendering and construction. These plans include surface and setout plans, planting plans and landscape details to have a landscape design documentation package that can be used to create your garden.
The detailed landcsape plans are review with you in person with one set of updates included in the fee.
-

DA Landscape Plans
We complete DA landscape plans in collaboration with architects and building designers to provide a positive landscape outcome for developments.
We can complete plans for these submission both in the ACT and NSW.
-

Landscape Master Planning
Landscape master planning is offered for rural and estate projects. We develop landscape plans that respond to the larger context of the site, architectural qualtities, access, tree plantings, windbreaks with overarching considerations given to maintenance, establishment and long term resilience.
-

Tree Management Plan
We work with arborists to develop detailed tree management plans for your project. We take a collaborate approach to complete these plans and can assist with developing coordinated landscape plans for your project.